TWIN HERRINGBONE 
LAYING INSTRUCTIONS

C 11.0

 

C 11.0

 


FIGURE 1
TWIN HERRINGBONE 

GENERAL INFORMATION

Junckers Twin Herringbone parquet (Fig. 2) is inspired by the traditional Herringbone flooring.

Each floor board consists of two rows of staves. One row with a full length stave and one row with two half-length staves. In this way an interesting pattern is obtained.

This document describes installation of the staves in a herringbone pattern. However the staves are delivered as right and left handed. Therefore only imagination sets a limit for choice of pattern. See the difference between a left and right handed stave in figure 2.

Junckers Twin Herringbone staves have gone through a thorough quality control process at the factory. It is however important to check for errors and defects also before and during the installation.

Junckers Solid Hardwood Twin Herringbone floors are factory finished and ready to use right after installation.

FIGURE 2
LEFT/RIGHT PARQUET STAVE

STAVE DIMENSIONS:

Thickness x width x length
- 14 x 129 x 516.6 mm
- 22 x 129 x 516.6 mm

 

If the staves are glued down, leave the floor for a minimum of 24 hours before putting it into use.

The staves are supplied in packages clearly marked as either left or right handed staves.

BEFORE DELIVERY - RH IN THE BUILDING

Before the Twin Herringbone staves are delivered, the relative humidity in the building must be within the relative humidity range expected when in use, e.g. 35-65 %, and the temperature must be approximately 20 °C.

If the above temperature and relative humidity levels cannot be met, we ask you to contact Junckers before delivery.

The staves should be delivered 1 or 2 days before installation is due to begin.

The parquet staves must stay wrapped until installation begins, as it is important that the staves are kept as close to the manufacturing condition as possible.

ENVIRONMENTAL CONDITIONS

In order to keep moisture related movements of the floor to a minimum, the relative humidity should be stable for extended periods of time. The humidity range, i.e. the difference between the lowest and the highest relative humidity during the year, should not exceed 25 to 30 %-points.

Examples of humidity ranges are: 25-50 %, 35-65 % RH.
The instructions below are based on the range 35-65 % RH.
If site conditions should vary from the above, it is advisable to contact Junckers Technical Service Department for advice.


BEFORE INSTALLING THE FLOOR

The building must be dry and weathertight. The heating system must be installed, tested and in operation during the heating season.
Cast concrete, screeds and other interior work, which can bring moisture into the building, e.g. tiling, plastering and painting, must also be completed.


UNDERFLOOR HEATING

Wooden floors over underfloor heating demand an even temperature distribution in the subfloor and the temperature of the wooden floor surface must not exceed 27 °C.

The underfloor heating must be switched off for 2 days before installation is started. After installation the heating can be raised slowly by a maximum of 5 °C every second day. However, the working temperature for the adhesive must be minimum 15 °C.

By using under floor heating as heat source the natural gaps, always present between the staves in the heating season, will appear slightly larger compared to heating from radiators.


SUBFLOORS

General information:
The staves can be screwed, nailed or glued to a subfloor of plywood / existing wooden floor or screwed or glued to a chipboard base. Furthermore, they can be glued down to a concrete or screeded subfloor. All types of subfloors must be cleaned for dirt and grease, before installing the staves.

The moisture content of a wood based subfloor must not exceed 12 %. For concrete/screeded subfloors the moisture content must not exceed 65 % RH.

When screwing or nailing, a 500 g/m² floor cardboard is to be inserted between the wooden subfloor and the staves in order to minimize creaking between the staves and the subfloor. Each stave is fixed by secret nailing/screwing at a 45° angle with at least 2 nails or screws per stave. If screws or nails are used to fasten the staves, it is recommended to use 22 mm stave thickness. This for the sake of the strength of the tongue.

Fastening to subfloor, 22 mm parquet staves:
- Nailing: Junckers J-nails or 45 mm T-nails for nail gun.
- Screwing: 45 mm Monta-Flex screws or similar. By screwing it is necessary to pre-drill.
- Gluing: Junckers Parquet Glue.

Fastening to subfloor,14 mm parquet staves:
- Gluing: Junckers Parquet Glue.

Twin Herringbone staves must NOT be glued in the tongue and groove. However staves shorter than 100 mm may as an exception be glued in the heading joints at walls or borders and in the tongue and groove at the last row of staves. If the floor is to be installed with a border, see section “finishing with a border”.

Existing wooden floor:
The staves should be laid so that their longitudinal direction is perpendicular to the existing floor boards. In order to achieve the correct surface flatness, the subfloor can be levelled by planning, filling or by fixing a minimum 15 mm thick plywood to the base.

If plywood is used, the original laying direction can be used. It is important to ensure that the existing wooden floor has been properly fixed and are without jarring sounds.

Plywood floor:
Plywood subfloors must be minimum 19 mm thick with a batten distance of c/c 520 mm.
If plywood is being fixed to an existing timber base, boards 15 mm thick may be used.
Tongue and grooved jointed plywood must be glued together in accordance with the manufacturer’s instructions.

Chipboard floor:
Flooring grade chipboards 22 mm thick can be used and laid on battens with maximum support centres of 600 mm.
If the chipboards are laid on an existing floor, it must be approved chipboards of minimum 16 mm.
The boards must be fitted according to the manufacturer’s directions and must be glued in the tongue and groove joints.

Concrete/screed:
When gluing, it is not possible to use a conventional damp-proof membrane. It is therefore very important to ensure that the surface of the subfloor is smooth, clean and dry. The residual moisture in the subfloor must thus not exceed 65 % RH, which must be checked by measuring. For more information see technical data sheet C 1.3 General information gluing down floors, section "Measurements of moisture in subfloors".

In case the floor installation needs to be conducted, with a moisture content between 65-95 % RH in the concrete subfloor, or in case of underfloor heating, apply Junckers Liquid Moisture Barrier before gluing. For more information see technical data sheet "Liquid Moisture Barrier" H 6.5.

Different types of subfloors in same floor area:
If several types of subfloors make up the same floor area, the subfloor must be of uniform elasticity and flatness to ensure that the final flooring is of a consistent nature.

Glue down method:
- For gluing the floor use Junckers Parquet Glue.
- The glue is applied using the Junckers notched Glue Spatula (Type J11).
- Hold the spatula at an angle of 45° and with the side marked ”2” turned downwards.
- Use approximately 0.5 litre per m², depending on the absorption capacity, structure and flatness of the subfloor.
- Only apply sufficient adhesive, so that the laying of the tiles can be finished within 20 minutes.

7. FLATNESS OF THE SUB FLOOR

The subfloor must be levelled so that any deviations in the flatness do not conflict with the requirements of the method stated below.

Straight edge:
The subfloor must be flat with a maximum deviation of 2 mm under a 1.5 m straight edge.
(UK: 3 mm under a 2 m straight edge).
(US: 10 ft. under a 3/16” straight edge).

Deviations are measured as gaps under the straight edge. The surface must be smooth. Any irregularities must be corrected by grinding or by using a self levelling compound.


10-BOARD MEASUREMENT - OTHER PATTERNS

Wooden floors slightly shrinks / expands, when the temperature and humidity is changing. It is therefore necessary to install according to a 10-board measurement, when laying twin-herringbone staves in patterns, where the staves are placed parallel over larger distances, e.g. a ladder pattern. Please note that this instruction does not apply to the herringbone pattern.

The 10-board measurement indicates the expected width measured across 10 staves at the most humid period of the year.

The 10-board measurement for Junckers Twin Herringbone staves, indicated at an expected relative humidity between 35-65 % and a room temperature at 18-22 ˚C is 129.2-129.4 cm. 

If you have any questions, please contact Junckers.


DISTANCE TO WALLS AND EXPANSION GAPS

In order to allow natural movements of the floor, a distance to walls and fixed installations must be kept. 12 mm for areas in a width or length up till 12 metre. Hereafter an addition of 0.5 mm per meter.

Example: A 30 metres wide/long area: 12 mm + (18 x 0.5) = 21 mm.

We recommend that expansion gaps are established in the following cases: By conditions with large variations in temperature and humidity, with particularly large floor areas, or where the floor is naturally divided by doors etc.

Furthermore, any structural movement joints in the sub floor of the building must be taken up through the wooden floor if this is glued down to the subfloor.

INSTALLATION - PART 1

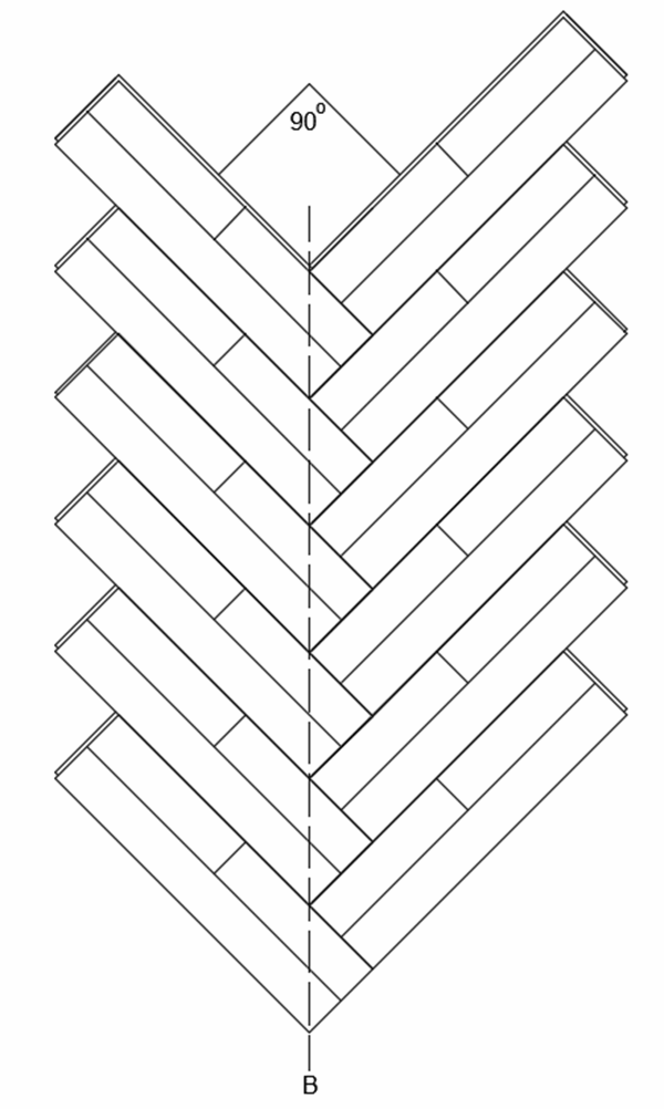
The two centre lines in the room (lines A and C) are marked by a chalk line or string at an angle of 90° to each other.

45 mm left of the centre line (A), a working line with a string or chalk line (line B) is drawn.


INSTALLATION - PART 2

The corners of the staves must be in line with the working line (line B).

In order to regulate the laying direction of the starting row, the centre line (line C) can be used as regulating line for the corners on the right and left staves, respectively (see figure).

Left staves are laid to the left and right staves are laid to the right.


INSTALLATION - PART 3

During the entire installation phase, it is very important to make sure that the staves are at an angle of 90°.

Particularly at the starting rows (the two first rows of staves, which are laid down
through the room, it is important to ensure that these rows are exactly at an angle of
90°.

INSTALLATION - PART 4

When the starting row has been laid it is recommended to leave the adhesive to dry overnight, before installing of the floor continues.

Do not forget to remove excess adhesive from the floor.

It is advisable to load the floor continuously during laying to ensure a good bond
between the staves and subfloor. Some contractors use packs of flooring or adhesive
containers for this purpose.


INSTALLATION - PART 5

When the adhesive in the starting row is dry, you can continue laying the floor.

You must only apply adhesive in an amount, enabling you to finish laying the staves within 20 minutes.


INSTALLATION - PART 6

If the staves are cut at the border or wall making them shorter than 100 mm, the tongue and groove joints of the staves may as an exception be glued.

FINISHING WITH A BORDER - PART 1

The floor can be beautifully framed with a border in the same wood species as the restof the floor or in another wood species to obtain more contrast.

If the floor is to be finished with a border at the walls, the floor is cut at the required distance from the wall corresponding to the desired width of the edging, e.g. 2 x the stave width + distance to the wall.

Example with 2 staves as border:
2 x 129 mm + 12 mm for air = 270 mm.


FINISHING WITH A BORDER - PART 2

To be able to join the border to the main floor, a groove is cut in the floor edge with a router.

The groove must match the thickness of the tongue of the staves and be placed in a distance from the upper side of the floor to ensure that landing deviations are avoided.


FINISHING WITH A BORDER - PART 3

The border staves are cut to form a mitred corner and a groove is routed in the stave edges to enable a loose tongue to be fitted.

FINISHING WITH A BORDER - PART 4

Hereafter the staves are glued down to the edging.

It is advisable to load the floor continuously during laying to ensure a good bond
between staves and sub floor.

Some contractors use packs of flooring or adhesive containers for this purpose.

keyboard_arrow_up



picture_as_pdf